Chiamaci Scrivici
Effettua la ricerca

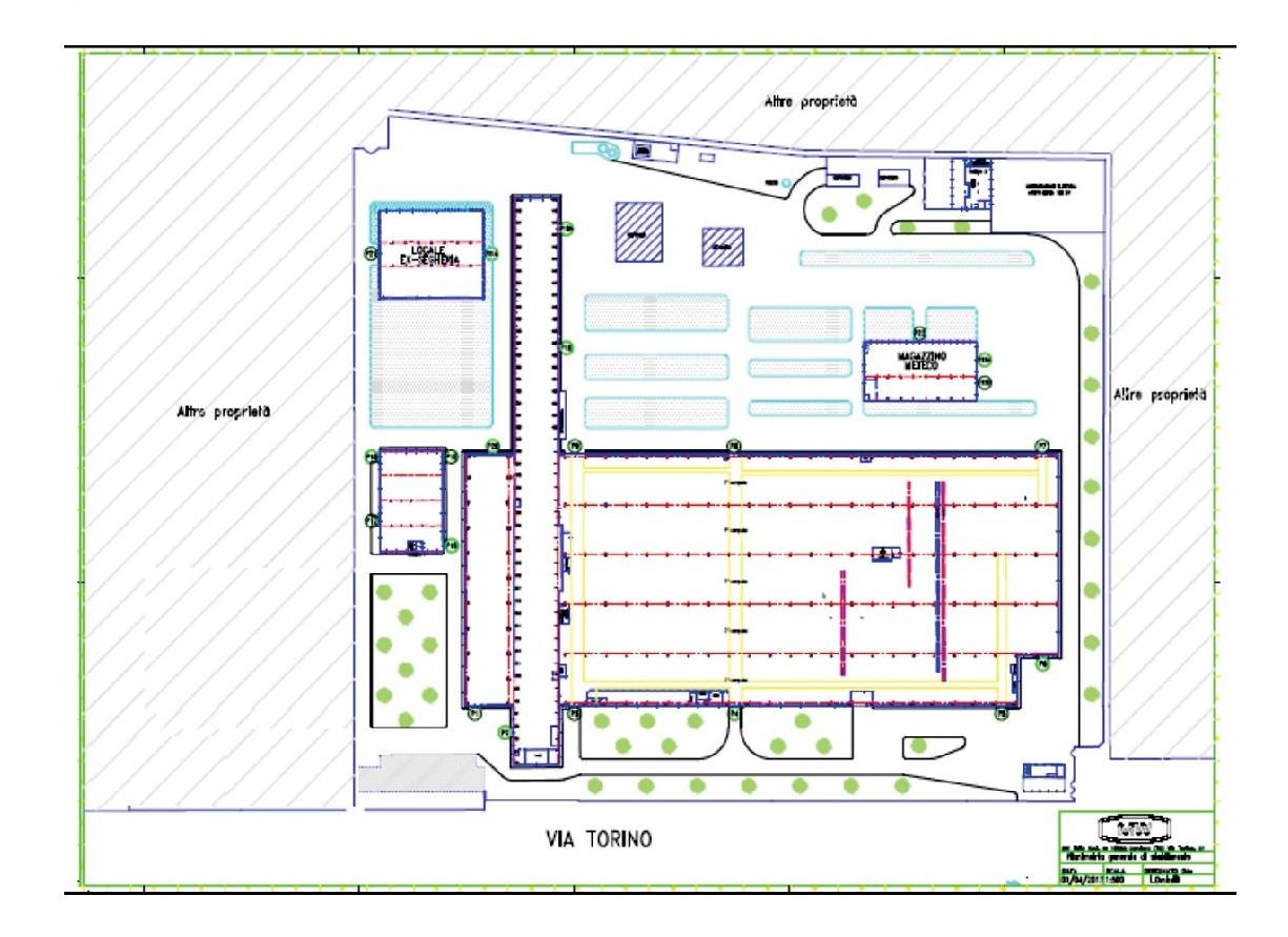
Capannone di 114.275 mq in Vendita a € 2.000.000

Condove, Via Torino

Industriale

Condividi:
H 115729
Codice

In Vendita a Condove, in una zona industriale strategica e facilmente accessibile.
Libero al rogito, in un'area di circa mq. 115.000, questo immobile si estende su un totale di circa 38.300 metri quadrati, suddiviso nel corpo centrale (mq. 29.250 circa - H mt. 9,40) + una lunga manica (mq. 6.125 circa - H mt. 11,40) ed un ulteriore manica (mq. 2.900 circa - H mt. 11,40); tutti gli immobili sono adiacenti e collegati tra loro, offrendo un'ampia superficie adatta ad attività produttive di vario genere.
Lo stato di conservazione è da ristrutturare, offrendo così la possibilità di personalizzare gli spazi e adattarli alle esigenze specifiche dell'acquirente.
Ampio piazzale di circa 76.000 mq, ideale per agevolare il carico e lo scarico delle merci e per il parcheggio dei mezzi pesanti.
Questo Capannone in Vendita a Condove rappresenta un'opportunità imperdibile per chi cerca uno spazio ampio e funzionale per avviare o ampliare la propria attività, in una zona industriale altamente strategica e con tutti i servizi necessari a portata di mano.

114.275 mq
€ 2.000.000

Classe energetica

G

  EP glnr: 1125.84 kwh/m²

Informazioni immobile
Codice H 115729
Contratto Vendita
Tipologia Capannone
Regione Piemonte
Provincia Torino
Comune Condove
Zona Industriale
Prezzo € 2.000.000
Totale mq 114.275 mq
Stato conservazione Da ristrutturare
Caratteristiche
Mensole carro ponte
Pese a bilico
Forza motrice_
Cabina trasformazione
Acqua uso industriale
Antincendio
Allarme_
Area esterna
Passo carraio
Nelle vicinanze
Palestre
Centri Benessere
Campi da Calcio
Complessi Sportivi
Campi da Tennis
Piste Ciclabili
Parchi Giochi
Stazione Ferroviaria
Trasporti Pubblici
Asilo
Scuole Elementari
Scuole Medie
Scuole Superiori
Bar
Uffici postali
Centri commerciali
Uffici comunali
Ubicazione immobile

Ultimo aggiornamento 06-05-2026