Chiamaci Scrivici
Effettua la ricerca

Appartamento di 230 mq in Vendita a € 710.000

Torino, Via Andrea Palladio

Gran Madre - Crimea

Condividi:
4842
Codice

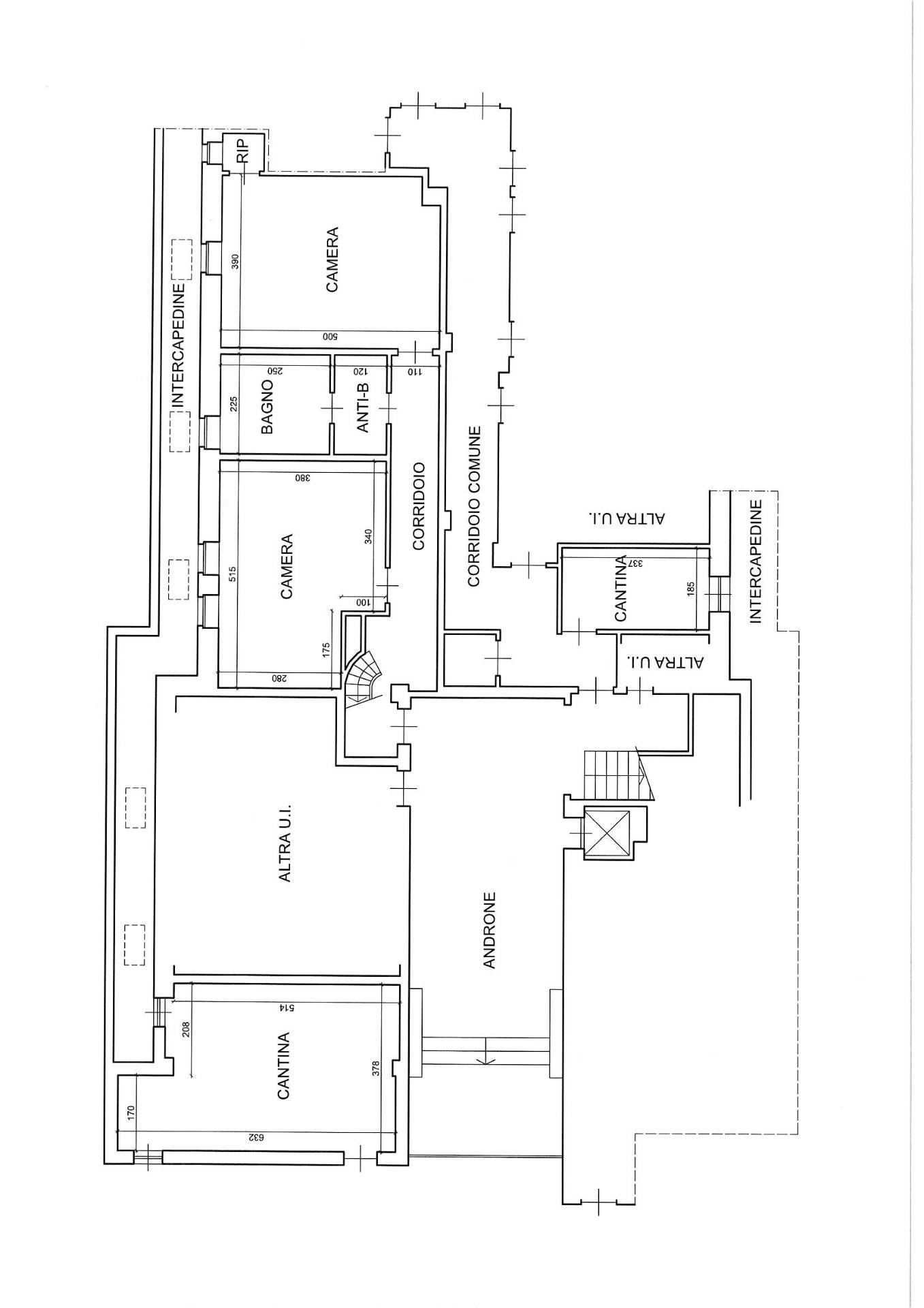
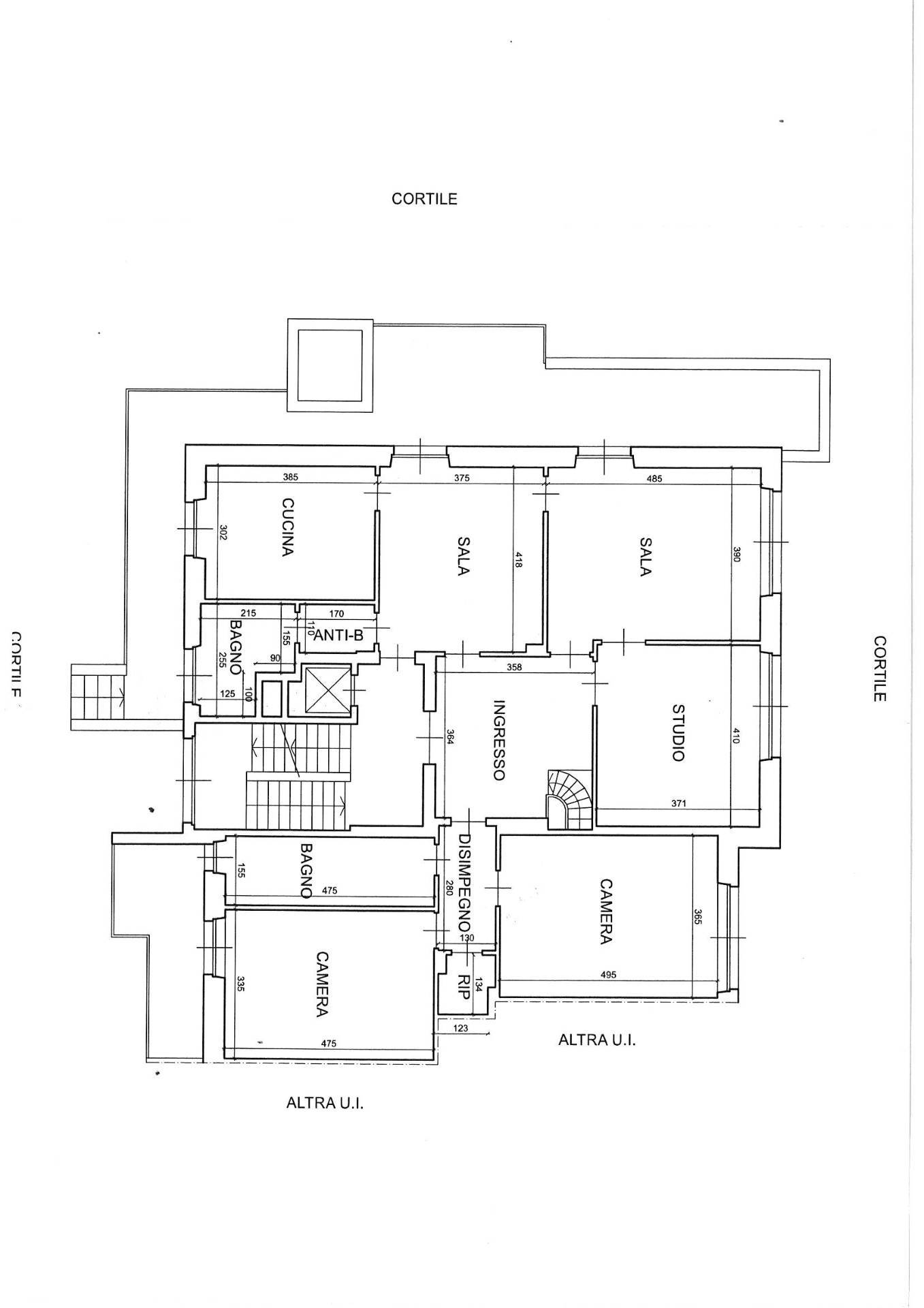
Proponiamo in Vendita in curato stabile anni '70 signorile Appartamento di 230 mq. ca sito al piano rialzato. L' unità è disposta su due livelli collegati anche internamente; al piano terreno: doppi ingressi, di cui uno living su soggiorno, sala da pranzo, tre camere, cucina abitabile, doppi servizi e ripostiglio. Al piano primo interrato: disimpegno, due ampie camere e bagno con antibagno. Ampia e godibile balconata circonda tutto il perimetro dell'Appartamento con "zona terrazzo" fruibile comodamente collegata alla cucina.
Valorizza la proprietà una fruibile area verde ad uno esclusivo frontestante la proprietà. La tripla esposizione e la disposizione angolare conferiscono un'accentuata luminosità a tutti gli ambienti.
Completano la proprietà due ampie cantine di pertinenza.
Lo stato di conservazione interno è buono, dovuto ad una buona manutenzione ordinaria sostenuta negli anni, ma l'immobile necessita di interventi di ristrutturazione riguardanti impiantistica, rivestimenti e pavimentazioni, dovuti alla vetustà della costruzione. Il riscaldamento è centralizzato con termo-valvole ed ammonta a 2.000/00 euro annui ca; le spese condominiali ammontano a 3900/00 euro ca. annui.
Possibilità di acquisto di un box auto doppio (in lunghezza) sito al piano 1°interrato a Euro: 50.000/00 con ingresso da Via Biamonti.
Posizione in contesto residenziale signorile e riservato a pochi passi dalla Gran Madre e da piazza Vittorio.
Categoria Catastale A/2 r.c: 3.005,78.
Classe Energetica; E

230 mq
5 Camere
3 Bagni
€ 710.000

Classe energetica

E

  EP glnr: 224.34 kwh/m²

Informazioni immobile
Codice 4842
Contratto Vendita
Tipologia Appartamento
Regione Piemonte
Provincia Torino
Comune Torino
Zona Gran Madre - Crimea
Prezzo € 710.000
Totale mq 230 mq
Camere 5
Bagni 3
Locali 9
Stato conservazione Buono
Piano Piano rialzato
Piani totali 4
Riscaldamento Centralizzato con contabilizzatore di calore
Ascensore Si
Infissi vetro singolo/ infisso in legno
Età costruzione 1970
Spese condominio € 325
Disponibile Si
Balconi Presente
Terrazzo Presente
Giardino Comune
Cucina Abitabile
Box Doppio
Posizione Centrale
Caratteristiche
Ripostiglio
Parquet
Impianto Telefonico
Doccia
Infissi in legno
Ubicazione Città
Nelle vicinanze
Palestre
Centri Benessere
Campi da Calcio
Complessi Sportivi
Campi da Tennis
Piste Ciclabili
Parchi Giochi
Stazione Ferroviaria
Trasporti Pubblici
Asilo
Scuole Elementari
Scuole Medie
Scuole Superiori
Bar
Uffici postali
Centri commerciali
Uffici comunali
Ubicazione immobile

Ultimo aggiornamento 16-10-2025