Chiamaci Scrivici
Effettua la ricerca

Attico di 200 mq in Vendita a € 520.000

Rivoli, Piazza Fratelli Cervi

Cascine Vica

Condividi:
H 115778
Codice




Attico di pregio situato al sesto e settimo piano, caratterizzato da un design essenziale che ne esalta gli spazi e la luminosità.

L'immobile si trova in una zona rinomata per la sua tranquillità, nelle immediate vicinanze di Corso Francia e comoda alla futura fermata della metropolitana. La posizione privilegiata offre panorami mozzafiato sulla città e sull'arco alpino, rendendolo una soluzione abitativa ideale per chi desidera ampi spazi e viste spettacolari.

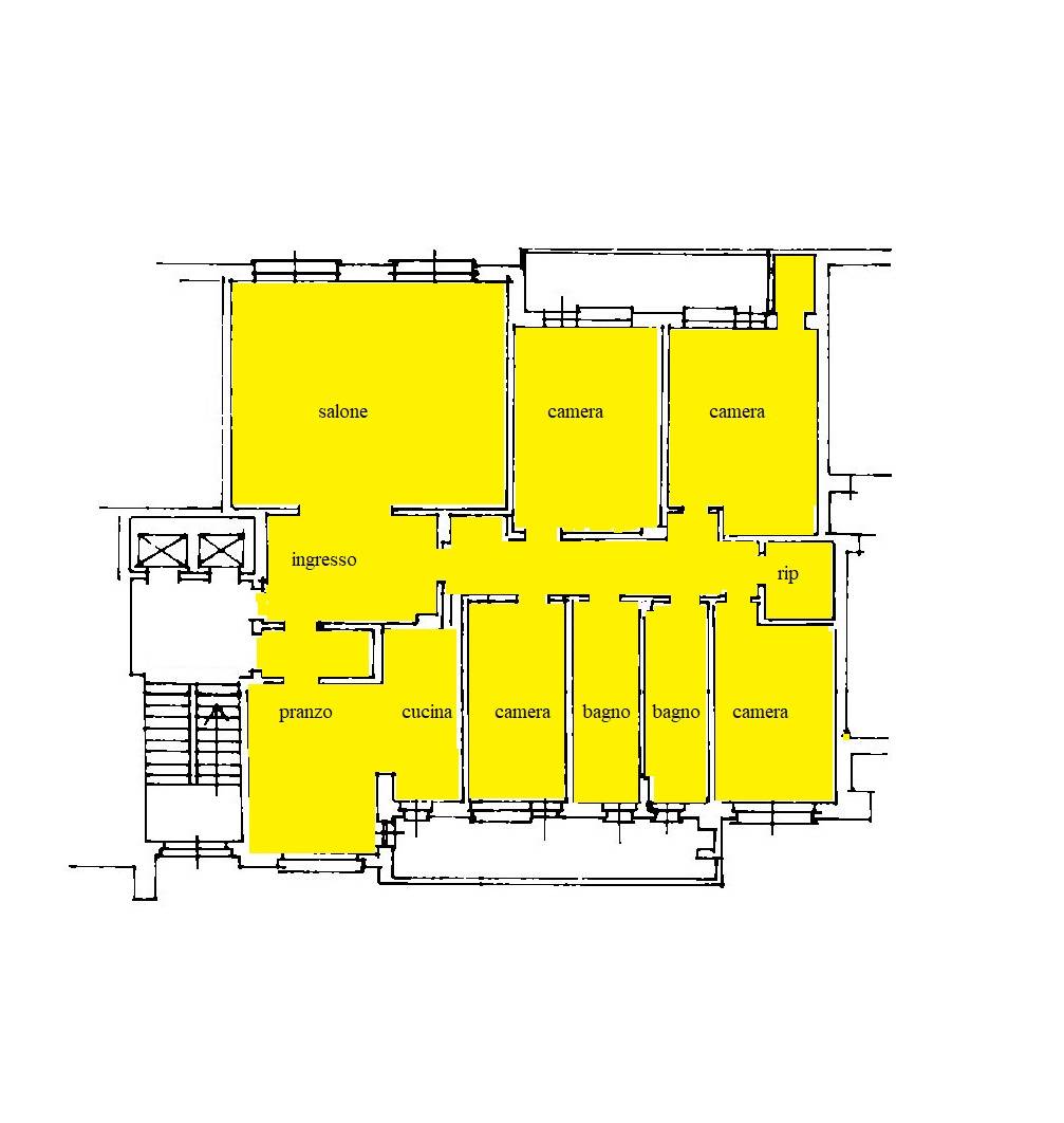
L'Attico è composto da un ingresso su un salone triplo con un'ampia zona pranzo, una cucina, quattro camere da letto e tre bagni. Diversi balconi di generosa metratura, da cui tramite una comoda scala, si accede alla terrazza panoramica di 118 mq. Questa proprietà offre la possibilità di vivere in un'oasi di pace, lontani dal caos cittadino, pur mantenendo tutti i servizi a portata di mano e ottimi collegamenti con il centro.

Costruito nel 2010, l'immobile è un esempio di architettura residenziale elegante e funzionale, con un'impronta classica valorizzata da ampi spazi interni e un'esposizione che garantisce una luminosità straordinaria. Le finiture interne conferiscono all'appartamento uno stile distintivo.

Nella richiesta econimica è compresa una cantina di 16 mq ed un box auto comodamente collegato con l'ascensore.

200 mq
4 Camere
3 Bagni
€ 520.000

Classe energetica

C

  EP glnr: 85.24 kwh/m²

Informazioni immobile
Codice H 115778
Contratto Vendita
Tipologia Attico
Regione Piemonte
Provincia Torino
Comune Rivoli
Zona Cascine Vica
Prezzo € 520.000
Totale mq 200 mq
Camere 4
Bagni 3
Locali 6
Stato conservazione Buono
Piano 6
Piani totali 6
Riscaldamento Centralizzato
Ascensore Si
Infissi Alluminio con doppia vetro camera
Età costruzione 2010
Stato attuale Libero al rogito
Spese condominio € 185
Disponibile Si
Balconi Presente, 45 mq
Terrazzo Presente, 118 mq
Cucina Abitabile
Box Singolo
Posizione Centrale
Caratteristiche
Antenna Tv Condominiale
Aria Condizionata
Impianto Elettrico A norma
Infissi in alluminio
Ubicazione Città
Nelle vicinanze
Palestre
Centri Benessere
Campi da Calcio
Complessi Sportivi
Campi da Tennis
Piste Ciclabili
Parchi Giochi
Stazione Ferroviaria
Trasporti Pubblici
Asilo
Scuole Elementari
Scuole Medie
Scuole Superiori
Bar
Uffici postali
Centri commerciali
Uffici comunali
Virtual tour immobile
Ubicazione immobile

Ultimo aggiornamento 03-10-2025