Chiamaci Scrivici
Effettua la ricerca

Casa indipendente di 300 mq in Vendita a € 245.000

Rivalta di Torino, via Giuseppe Griva

Centro Storico

Condividi:
EI 1635
Codice

Rivalta di Torino, VIA GRIVA Casa indipendente DA RISTRUTTURARE CON POSSIBILITA' DI UNI, BI/TRIFAMILIARE

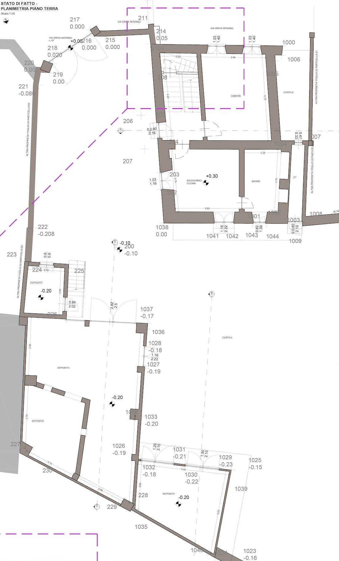
Nel cuore del centro storico di Rivalta di Torino, e precisamente nella centralissima via Guseppe Griva, a pochi passi dal Comune e da ogni comodità proponiamo la Vendita di una Casa indipendente da ristrutturare caratterizzata da ampi spazi e grandi potenzialità.
La proprietà costruita tra la fine del 1800 e l'inizio del 1900 sorge su un lotto di terreno di mq 740 circa ed è ora formata dalla casa principale sviluppata su due livelli per una superficie complessiva di mq 160 circa oltre a cantina e sottotetto e da locali deposito.
Al piano terra della casa principale troviamo ingresso, soggiorno - cucina, un bagno, una camera, il locale c.t..
Attraverso la comoda scala interna si raggiunge il piano primo con tre camere e un bagno. Il sottotetto è accessibile attraverso una scala retrattile. Al piano interrato ampia cantina.
Nel cortile sono presenti locali deposito per mq 140 circa e possibilità di creare più posti auto.
La proprietà ha già fatto predisporre un progetto di massima che prevede la ristrutturazione totale con la possibiltà di recuperare anche la tettoia ed il deposito che sono siti nel cortile creando una, due o tre unità abitative anche volendo completamente indipendenti e precisamente due alloggi nella casa principale più una villetta o due villette per un totale di mq 300 circa.
Grazie all'indipendenza e alla privacy garantite, questa soluzione è perfetta per chi desidera una soluzione abitativa tranquilla e riservata.
Inoltre, la posizione centrale di questa Casa indipendente consente di raggiungere facilmente tutti i servizi e le attività commerciali del centro di Rivalta di Torino, rendendola ancora più appetibile per coloro che amano vivere in un ambiente dinamico e ben collegato.
La posizione unica ne fa anche una buona occasione di investimento sia ad uso privato che commerciale!!!
I dati qui riportati sono informativi e non costituiscono elemento contrattuale.
Accertamenti catastali e comunali in corso.

300 mq
4 Camere
1 Bagni
€ 245.000

Classe energetica

D

  EP glnr: 214.67 kwh/m²

Informazioni immobile
Codice EI 1635
Contratto Vendita
Tipologia Casa indipendente
Regione Piemonte
Provincia Torino
Comune Rivalta di Torino
Zona Centro Storico
Prezzo € 245.000
Totale mq 300 mq
Camere 4
Bagni 1
Locali 6
Stato conservazione Da ristrutturare
Piano Edificio
Piani totali 2
Riscaldamento Autonomo
Posto auto Scoperto
Infissi legno
Età costruzione 1900
Stato attuale Libero al rogito
Disponibile Si
Balconi Presente
Giardino Privato
Cucina A Vista
Posizione Centrale
Caratteristiche
Parquet
Infissi in legno
Persiane
Ubicazione Città
Nelle vicinanze
Palestre
Centri Benessere
Campi da Calcio
Complessi Sportivi
Campi da Tennis
Piste Ciclabili
Parchi Giochi
Trasporti Pubblici
Asilo
Scuole Elementari
Scuole Medie
Scuole Superiori
Bar
Uffici postali
Centri commerciali
Uffici comunali
Video immobile
#
Ubicazione immobile

Ultimo aggiornamento 19-04-2026