Chiamaci Scrivici
Effettua la ricerca

Capannone di 34.200 mq in Vendita a Tratt. riservata

Caselette, Corso Susa

Semicentrale

Condividi:
H 115831
Codice

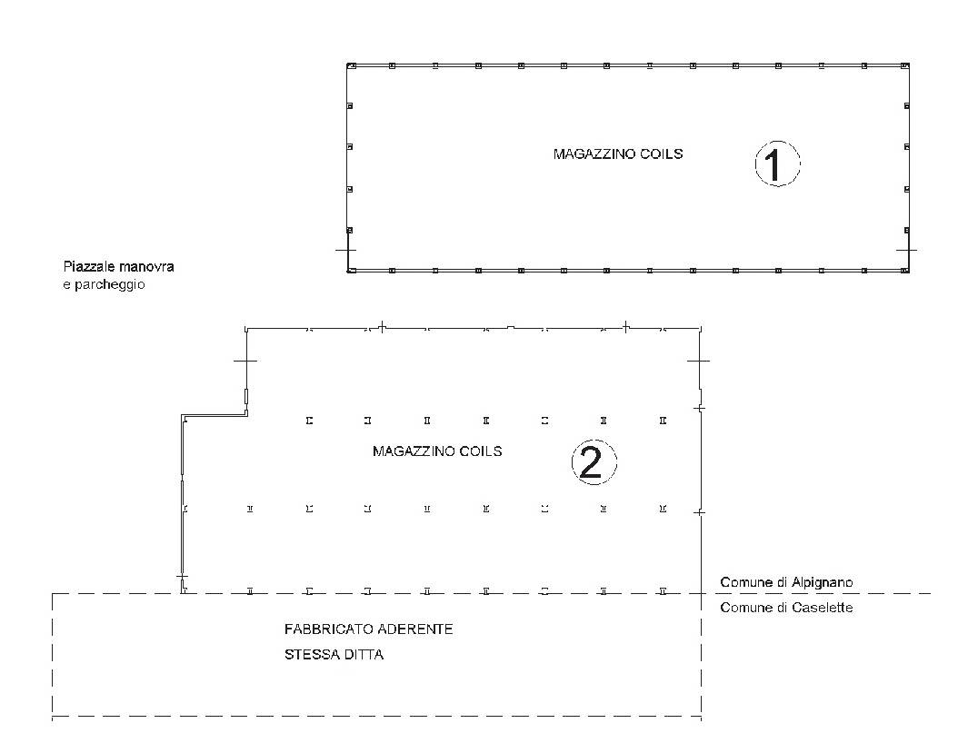
Complesso industriale a Caselette (TO), ubicato sulla strada principale (grande visibilità), composto da palazzina uffici di 2 piani (T 1 2) con mensa attrezzata e spogliatoi, per mq. 2.100.
Capannone industriale di circa mq. 23.750, anno costruzione 1995, tetto shed, altezza sotto trave mt. 5,50, al colmo mt. 9,00, colonne non influenti, diversi carroponti, accesso e manovra bilici molto facile, grandi piazzali davanti e sul retro, grande posteggio auto, zona segheria di mq. 355 e zona officina di mq. 265, CPI ad estintori, circa 10 bascule da 150 T.
Attiguo un Capannone per deposito di mq. 4.400 H mt. 13,00

34.200 mq
Tratt. riservata
Informazioni immobile
Codice H 115831
Contratto Vendita
Tipologia Capannone
Regione Piemonte
Provincia Torino
Comune Caselette
Zona Semicentrale
Prezzo Tratt. riservata
Totale mq 34.200 mq
Stato conservazione Buono
Caratteristiche
Mensole carro ponte
Pese a bilico
Forza motrice_
Cabina trasformazione
Acqua uso industriale
Antincendio
Allarme_
Area esterna
Passo carraio
Nelle vicinanze
Palestre
Centri Benessere
Campi da Calcio
Complessi Sportivi
Campi da Tennis
Piste Ciclabili
Parchi Giochi
Stazione Ferroviaria
Trasporti Pubblici
Asilo
Scuole Elementari
Scuole Medie
Bar
Uffici postali
Centri commerciali
Uffici comunali
Ubicazione immobile

Ultimo aggiornamento 19-12-2025