Chiamaci Scrivici
Effettua la ricerca

Centro logistico di 27.950 mq in Vendita a Tratt. riservata

Rivoli, Via Pavia

Cascine Vica/corso Allamano

Condividi:
H 115832
Codice

Il complesso industriale in Vendita si trova nella zona di Cascine Vica a Rivoli, in provincia di Torino, adiacente all'uscita corso Allamano della tangenziale di Torino ed alla direttrice di Corso Francia.
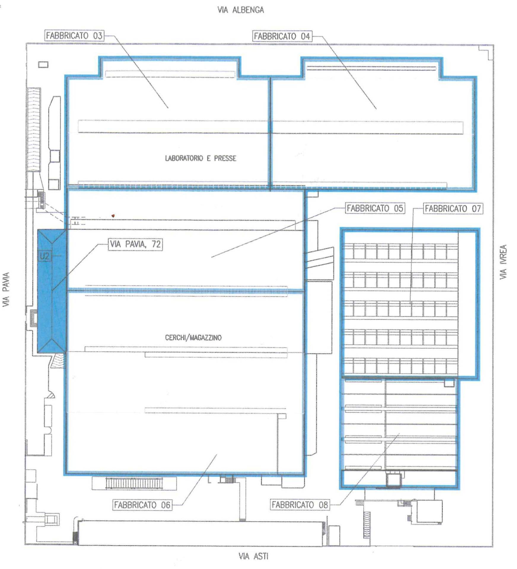
L'area è composta da 3 immobili, costruzioni degli anni 60, e di un piazzale di mq. 7.500 circa cintato, con guardiola all'ingresso
Un capannone di circa mq. 6.000, suddivisi in circa mq. 3.500 al piano terreno (H 5,0 mt), ed ulteriori mq. 2.500 al primo piano (H 8,5 mt), raggiungibili con un grande montacarichi (portata kg. 15.000). L'immobile si presenta in uno stato di conservazione da ripulire
La palazzina uffici per un totale di mq. 1.100 circa, molto luminoso, ed è composto da molteplici locali e bagni. Lo stato di conservazione dell'immobile è discreto; presente una portineria; sono disponibili 20 posti auto scoperti.
Un edificio, superficie totale di mq. 20.850 circa, composto di 7 campate alcune con carroponte. Lo stato di conservazione del capannone è discreto, il tetto in parte già bonificato, la pavimentazione regolare al 70%; è compresa una zona uffici, di mq. 1.850. Dispone di 5 ingressi carrai. LIBERO

27.950 mq
Tratt. riservata
Informazioni immobile
Codice H 115832
Contratto Vendita
Tipologia Centro logistico
Regione Piemonte
Provincia Torino
Comune Rivoli
Zona Cascine Vica/corso Allamano
Prezzo Tratt. riservata
Totale mq 27.950 mq
Stato conservazione Buono
Caratteristiche
Mensole carro ponte
Pese a bilico
Forza motrice_
Cabina trasformazione
Acqua uso industriale
Antincendio
Allarme_
Area esterna
Passo carraio
Nelle vicinanze
Palestre
Complessi Sportivi
Piste Ciclabili
Trasporti Pubblici
Bar
Centri commerciali
Ubicazione immobile

Ultimo aggiornamento 19-12-2025