Chiamaci Scrivici
Effettua la ricerca

Locale commerciale di 1.040 mq in Vendita a € 800.000

Caselette, Corso Susa

Semicentrale

Condividi:
H 115834
Codice

Ampio e luminoso Locale commerciale situato a Caselette, una zona semicentrale dalle ottime prospettive commerciali.
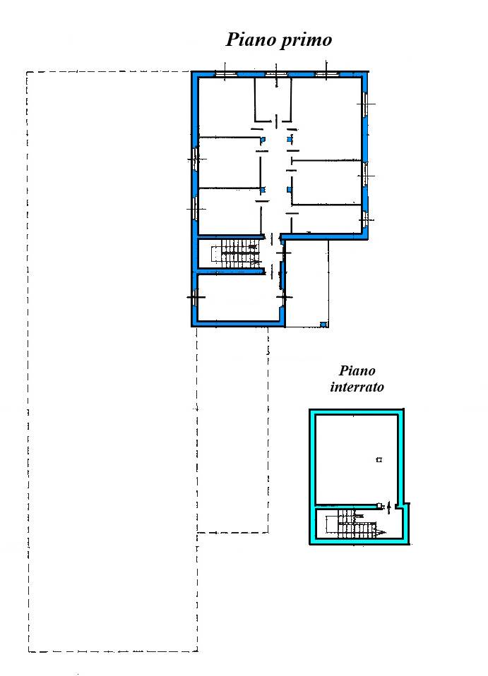
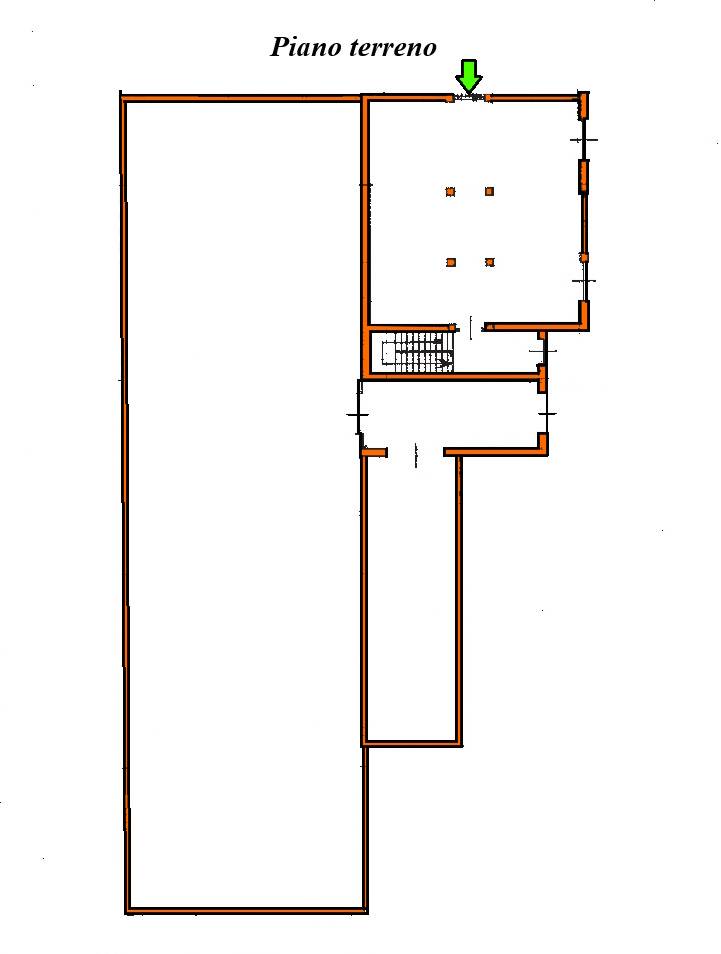
L'edificio si sviluppa su due piani ed è composto da 10 locali e 4 bagni, su 2 piani.
Grazie alle sue 8 vetrine, e di un bel piazzale parcheggio sul fronte strada, il locale gode di una grande visibilità.
Lo stato di conservazione è da ristrutturare, offrendo così la possibilità di personalizzare gli interni secondo le proprie esigenze e gusti.
Il locale è situato in un contesto sulla strada, facilmente raggiungibile e ben collegato con i mezzi pubblici.
Inoltre, dispone di una cucina abitabile, perfetta per organizzare eventi e servire cibi e bevande ai clienti.Un valore aggiunto è dato dal giardino privato, ideale per creare un'area relax all'aperto o per organizzare eventi all'aria aperta.
Dispone di una cantina e di un magazzino; il locale ha una superficie totale di circa mq. 1.040 metri quadrati.
Una grande opportunità per chi desidera investire in un'area in forte sviluppo e con ottime prospettive di crescita.

1.040 mq
4 Bagni
€ 800.000
Informazioni immobile
Codice H 115834
Contratto Vendita
Tipologia Locale commerciale
Regione Piemonte
Provincia Torino
Comune Caselette
Zona Semicentrale
Prezzo € 800.000
Totale mq 1.040 mq
Bagni 4
Locali 10
Stato conservazione Da ristrutturare
Numero Vetrine 8
Riscaldamento Assente
Posizione Strada ad alto traffico
Nelle vicinanze
Palestre
Centri Benessere
Campi da Calcio
Complessi Sportivi
Campi da Tennis
Piste Ciclabili
Parchi Giochi
Trasporti Pubblici
Asilo
Scuole Elementari
Scuole Medie
Scuole Superiori
Bar
Uffici postali
Centri commerciali
Uffici comunali

Ultimo aggiornamento 19-12-2025