Chiamaci Scrivici
Effettua la ricerca

Capannone di 15.510 mq in Vendita a € 3.870.000

Rivoli, Via Pavia

Cascine Vica/corso Allamano

Condividi:
H 115839
Codice

Zona industriale di Rivoli (To) frazione Cascine Vica,VENDESI complesso industriale. Guardiola e cancello elettrico per accesso al cortile.
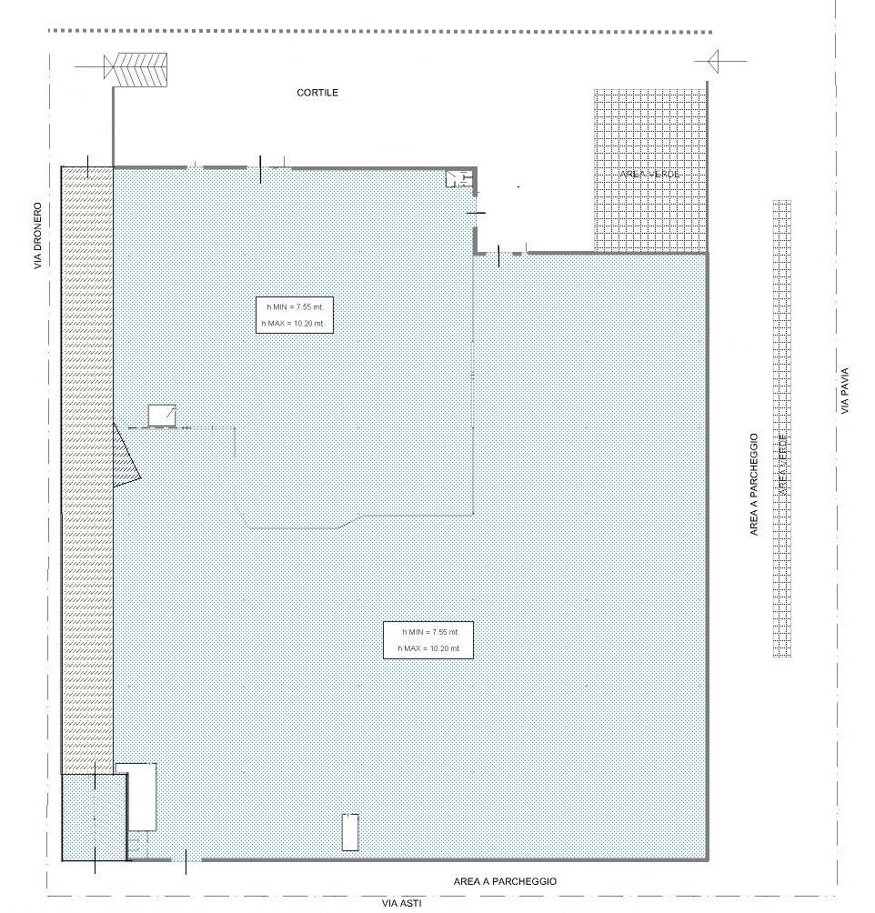
Il Capannone A, libero su 4 lati; mq. 8.200, tetto a shed appena rifatto. Altezza sottotrave mt. 7,55; altezza massima mt. 10,00 circa. Buono stato edilizio e manutentivo, riscaldato e con impianto luci nuovo automatizzato; i pilastri portanti sono in putrelle in ferro, snelle e poco ingombranti, pavimento ottimo; un corridoio laterale adibito per il passaggio e/o scarico al coperto dei mezzi pesanti. Presente una piccola zona uffici. LOCATO
La palazzina uffici a forma rettangolare è composta da piano T/1/2, suddiviso in 26 locali e 6 bagni, per una superficie di mq. 810 (mq. 270 per piano). Stato di conservazione è ottimo. Impianto elettrico a norma, riscaldamento autonomo, condizionamento e rete dati, pavimenti galleggianti, infissi nuovi, sala cucina, sala medica. Completano l'immobile 10 posti auto scoperti. LOCATA
Capannone e palazzina generano un reddito annuo di circa €. 190.000,00.
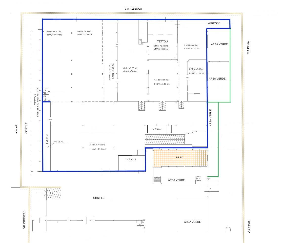
Il Capannone B è composto da due zone unite con differenti metrature - la prima di circa mq. 2.400, (altezza sottotrave mt. 7,80) con tetto a shed in amianto- la seconda, di circa mq. 4.000 (altezza sottotrave mt. 4,95) con tetto a botte . Originariamente era una officina di realizzazione del prodotto al grezzo (i macchinari presenti ancora oggi). Costruzione realizzata negli anni 60. LIBERO

15.510 mq
€ 3.870.000
Informazioni immobile
Codice H 115839
Contratto Vendita
Tipologia Capannone
Regione Piemonte
Provincia Torino
Comune Rivoli
Zona Cascine Vica/corso Allamano
Prezzo € 3.870.000
Totale mq 15.510 mq
Stato conservazione Discreto
Caratteristiche
Mensole carro ponte
Forza motrice_
Cabina trasformazione
Acqua uso industriale
Depuratori
Antincendio
Aria condizionata
Allarme_
Area esterna
Passo carraio
Nelle vicinanze
Palestre
Piste Ciclabili
Trasporti Pubblici
Bar
Centri commerciali
Ubicazione immobile

Ultimo aggiornamento 09-02-2026