Chiamaci Scrivici
Effettua la ricerca

Villa di 300 mq in Vendita a € 520.000

Chieri, via carlo collodi

Zona Semicentro

Condividi:
H H115786
Codice

Si propone in Vendita una Villa situata in Via Carlo Collodi 17 a Chieri, opportunità unica per chi desidera una soluzione abitativa moderna e pronta da abitare. La proprietà si presenta in condizioni eccellenti grazie a una recente e completa ristrutturazione che ha valorizzato ogni dettaglio, garantendo un'abitabilità perfetta senza necessità di ulteriori interventi.


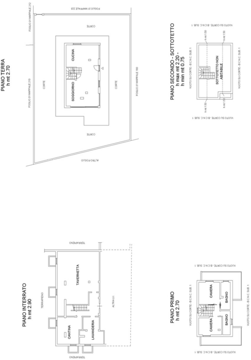
La Villa si sviluppa su più livelli, offrendo spazi ampi, luminosi e ben distribuiti:

-Piano Terra: L'ingresso si apre su una spaziosa zona giorno open space caratterizzata da un design contemporaneo, che integra armoniosamente una cucina a isola di pregio (Rossana Cucine), una zona pranzo e un'accogliente area divani. Le grandi vetrate di recente installazione inondano gli ambienti di luce naturale, creando un'atmosfera ariosa, da esse si può accedere al bel giardino che costeggia tutta la proprietà.
-Primo Piano: Questo livello ospita due ampie e luminose camere da letto. I due bagni, completamente ristrutturati, sono dotati di tutti i comfort moderni di cui uno dotato di una vasca da bagno freestanding Lirico Design. I balconi offrono una piacevole vista sul giardino privato.
-Secondo Piano: Un grande ambiente mansardato open space, ideale per diverse destinazioni d'uso come studio, sala hobby o ulteriore camera.
-Piano Interrato: Questo livello versatile include un ampio box auto di 80 mq, una pratica lavanderia, una cantina e una spaziosa tavernetta, ideali per soddisfare ogni esigenza di spazio e comodità.


La Villa è dotata di riscaldamento autonomo a pavimento alimentato a metano con caldaia a condensazione, garantendo una gestione efficiente dei consumi e un maggiore risparmio energetico. Dispone inoltre di climatizzazione estiva e invernale. La proprietà rientra in Classe Energetica D.
Per la massima tranquillità, l'immobile è dotato di un sistema di allarme volumetrico e perimetrale.
L'impianto di irrigazione programmabile mantiene il giardino sempre curato, nel 2023 è stata installata una colonnina per la ricarica di auto elettriche.


Questa Villa rappresenta la soluzione ideale per chi cerca una casa raffinata, funzionale e pronta per essere vissuta, immersa in un'oasi di tranquillità a Chieri.

300 mq
2 Camere
2 Bagni
€ 520.000

Classe energetica

D

  EP glnr: 180.44 kwh/m²

Informazioni immobile
Codice H H115786
Contratto Vendita
Tipologia Villa
Regione Piemonte
Provincia Torino
Comune Chieri
Zona Zona Semicentro
Prezzo € 520.000
Totale mq 300 mq
Camere 2
Bagni 2
Locali 8
Stato conservazione Ristrutturato
Riscaldamento Autonomo
Stato attuale Libero al rogito
Disponibile Si
Balconi Presente
Terrazzo Presente
Giardino Privato
Cucina A Vista
Box Triplo
Posizione Zona residenziale
Nelle vicinanze
Palestre
Centri Benessere
Campi da Calcio
Complessi Sportivi
Campi da Tennis
Piste Ciclabili
Parchi Giochi
Stazione Ferroviaria
Trasporti Pubblici
Asilo
Scuole Elementari
Scuole Medie
Scuole Superiori
Bar
Uffici postali
Centri commerciali
Uffici comunali
Virtual tour immobile
Ubicazione immobile

Ultimo aggiornamento 01-12-2025