Chiamaci Scrivici
Effettua la ricerca

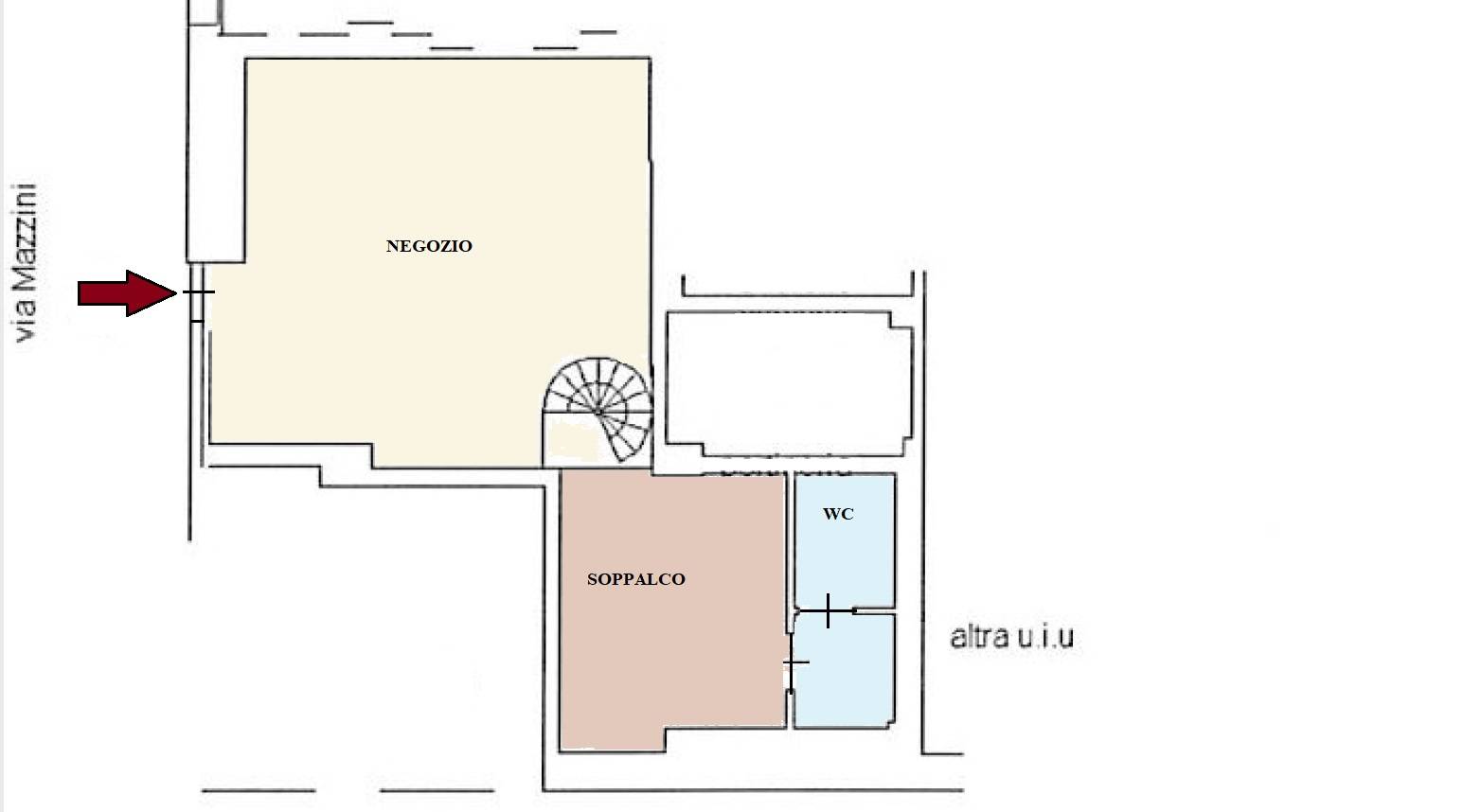
Negozio di 41 mq in Affitto a € 1.000

Torino, VIa Mazzini

Centro

Condividi:
IMM 4872
Codice

Negozio in perfette condizioni interne, finemente ristrutturato.
Vetrina su via Mazzini, con locale commerciale al piano terra.
Locale di servizio e wc al piano soppalcato.

41 mq
1 Bagni
€ 1.000

Classe energetica

F

  EP glnr: 534.85 kwh/m²

Informazioni immobile
Codice IMM 4872
Contratto Affitto
Tipologia Negozio
Regione Piemonte
Provincia Torino
Comune Torino
Zona Centro
Prezzo € 1.000
Totale mq 41 mq
Bagni 1
Locali 2
Stato conservazione Ottimo
Numero Vetrine 1
Riscaldamento Autonomo
Posizione Centrale
Spese condominio € 90
Nelle vicinanze
Palestre
Centri Benessere
Complessi Sportivi
Piste Ciclabili
Parchi Giochi
Stazione Ferroviaria
Trasporti Pubblici
Asilo
Scuole Elementari
Scuole Medie
Scuole Superiori
Bar
Uffici postali
Ubicazione immobile

Ultimo aggiornamento 14-01-2026