Chiamaci Scrivici
Effettua la ricerca

Villa Storica di 800 mq in Vendita a € 445.000

Alessandria, Via Graziani

Litta Parodi

Condividi:
H 115896
Codice

Nel cuore dell'alessandrino, nel sobborgo di Mandrogne, sorge Litta Parodi, un piccolo borgo situato a pochi chilometri dallo svincolo autostradale che collega Milano a Genova e Torino a Piacenza.
Qui, lungo la via principale del paese, si trova una villa liberty costruita nei primi anni del Novecento. La proprietà è circondata da un giardino di circa 2.500 metri quadrati e, sul lato sinistro, comprende anche la parte più antica del complesso, di circa 300 metri quadrati, attualmente adibita a garage.
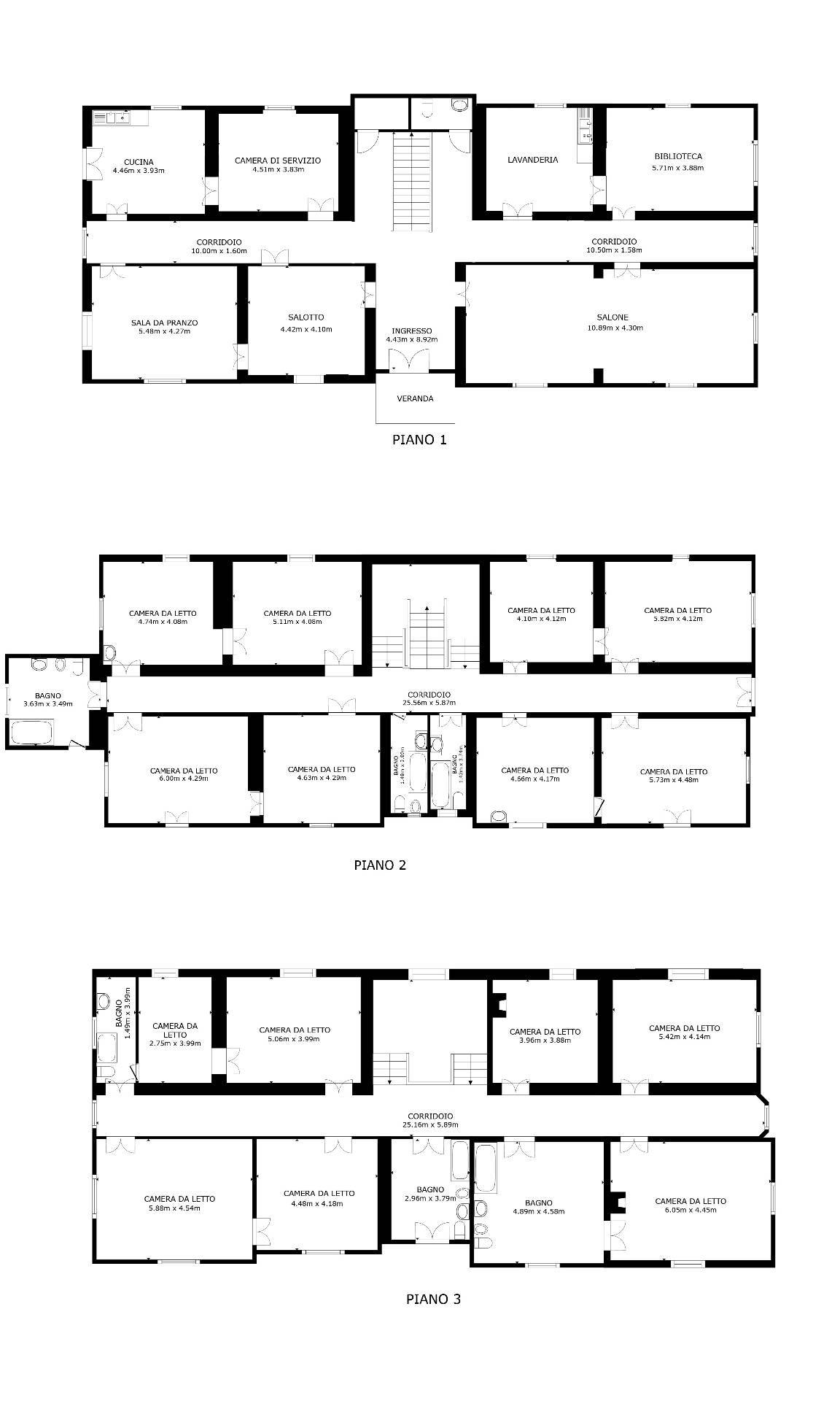
L'edificio principale, disposto su tre piani e con una superficie complessiva di circa 800 metri quadrati, è caratterizzato al centro da una scenografica scala in marmo bianco.
Al piano terra si trovano un ampio salone, un soggiorno con camino, la sala da pranzo, la cucina, uno studio, la tradizionale stanza da stiro e un ulteriore ambiente attualmente utilizzato come biblioteca. Sempre al piano terra, sotto la scala, sono presenti da un lato un bagno di servizio e dall'altro l'accesso alla grande cantina.
Il primo piano ospita otto camere da letto (due delle quali con balcone) e tre bagni. Al secondo piano si trovano sette camere da letto e tre bagni, di cui due di dimensioni molto generose.
Tutti gli ambienti del piano terra e del primo piano presentano soffitti affrescati con motivi floreali, tipici dello stile Liberty piemontese.
Il tetto è stato ristrutturato circa otto anni fa. La caldaia è di recente installazione.

800 mq
15 Camere
7 Bagni
€ 445.000

Classe energetica

F

  EP glnr: 179.39 kwh/m³

Informazioni immobile
Codice H 115896
Contratto Vendita
Tipologia Villa Storica
Regione Piemonte
Provincia Alessandria
Comune Alessandria
Zona Litta Parodi
Prezzo € 445.000
Totale mq 800 mq
Camere 15
Bagni 7
Locali 27
Stato conservazione Da ripulire
Piano Edificio
Piani totali 3
Riscaldamento Autonomo
Posto auto Coperto
Età costruzione 1910
Stato attuale Libero al rogito
Disponibile Si
Balconi Presente
Terrazzo Presente
Giardino Privato, 2.500 mq
Cucina Abitabile
Box Rimessa
Posizione Centrale
Caratteristiche
Antenna Tv Autonoma
Ripostiglio
Camino
Parquet
Impianto Telefonico
Impianto Elettrico A norma
Doccia
Infissi in legno
Persiane
Ubicazione Campagna
Nelle vicinanze
Palestre
Centri Benessere
Campi da Calcio
Complessi Sportivi
Campi da Tennis
Piste Ciclabili
Parchi Giochi
Stazione Ferroviaria
Trasporti Pubblici
Asilo
Scuole Elementari
Scuole Medie
Scuole Superiori
Bar
Uffici postali
Centri commerciali
Virtual tour immobile
Ubicazione immobile

Ultimo aggiornamento 16-03-2026