Chiamaci Scrivici
Effettua la ricerca

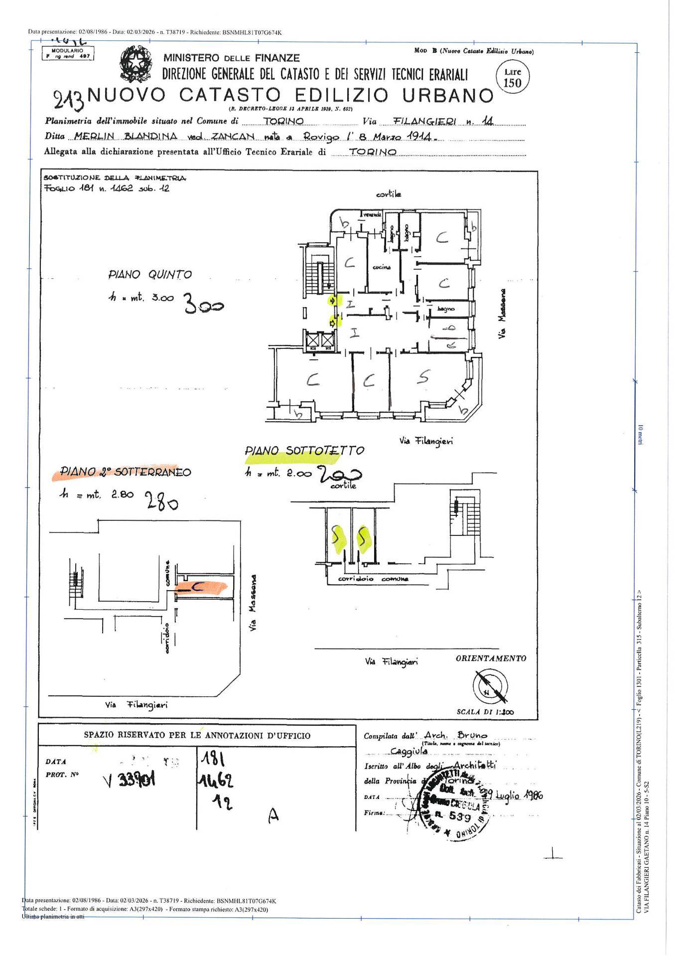
Appartamento di 280 mq in Vendita a € 750.000

Torino, Via Gaetano Filangieri

Crocetta

Condividi:
4917
Codice

Proponiamo in Vendita in curato e signorile stabile di fine anni'70 con servizio di portineria e doppio ascensore un Appartamento di 280 mq.ca sito al piano quinto. L'unità è cosi composta: doppi ingressi, disimpegni, salone angolare, cinque camere, cucina, quattro servizi, ripostiglio, lavamano, lavanderia e veranda; completano la proprietà una cantina al piano 2° sotterraneo e due soffitte al piano sottotetto. Il piano alto e la tripla esposizione conferiscono all'Appartamento una notevole luminosità degli ambienti ed una panoramicità accentuata, con l'affaccio aperto verso la collina di Torino e i giardini "Colombo". Lo stato di conservazione interno è ottimo e tutti gli ambienti presentano dimensioni congrue, le ampie balconate e i panoramici affacci valorizzano la proprietà. Il riscaldamento è centralizzato a pavimento ed ammonta ad euro 2.600/00 ca anni e le spese condominiali ammontano ad euro 4.200/00 annui ca. L'edificio è situato in Crocetta, quartiere con caratteristiche residenziali signorili, in posizione comoda ai vari tipi di servizi, nonché ai mezzi pubblici di trasporto (bus, metro e stazioni ferroviarie).Nelle vicinanze hanno sede molteplici attività terziarie e studi di professionisti, nonchè alcune facoltà universitarie (Politecnico), si sottolinea, inoltre, anche la vicinanza al presidio ospedaliero del Mauriziano. Comodo e ampio box auto doppio a parte: euro 45.000/00
Appartamento accatastato in A/2 rc: 4229,78 ; disponibile a sei mesi dal preliminare !!!

280 mq
5 Camere
4 Bagni
€ 750.000

Classe energetica

E
Informazioni immobile
Codice 4917
Contratto Vendita
Tipologia Appartamento
Regione Piemonte
Provincia Torino
Comune Torino
Zona Crocetta
Prezzo € 750.000
Totale mq 280 mq
Camere 5
Bagni 4
Locali 9
Stato conservazione Ottimo
Piano 5
Piani totali 8
Riscaldamento Centralizzato con contabilizzatore di calore
Ascensore Si
Infissi legno/vetro singolo
Età costruzione 1970
Spese condominio € 350
Balconi Presente
Cucina Abitabile
Posizione Centrale
Caratteristiche
Parquet
Sanitari sospesi
Doccia
Infissi in legno
Ubicazione Città
Nelle vicinanze
Palestre
Centri Benessere
Campi da Calcio
Complessi Sportivi
Campi da Tennis
Piste Ciclabili
Parchi Giochi
Stazione Ferroviaria
Trasporti Pubblici
Asilo
Scuole Elementari
Scuole Medie
Scuole Superiori
Bar
Uffici postali
Centri commerciali
Uffici comunali
Ubicazione immobile

Ultimo aggiornamento 13-04-2026